最近發現很多想開便利店的朋友都在找一些便利店貨架的擺放方法,作為一家有著15年生產銷售經驗的便利店貨架廠家,【時尚貨架】當然最有資格回答這個問題。不得不說,便利店貨架的擺法真的是一門學問,好的布局能夠吸引顧客購買欲望,糟糕的擺法則讓顧客不愿意來第二次,下面【深圳時尚貨架】就來說一說便利店貨架的4個擺法技巧。此方法適用于大部分便利店。

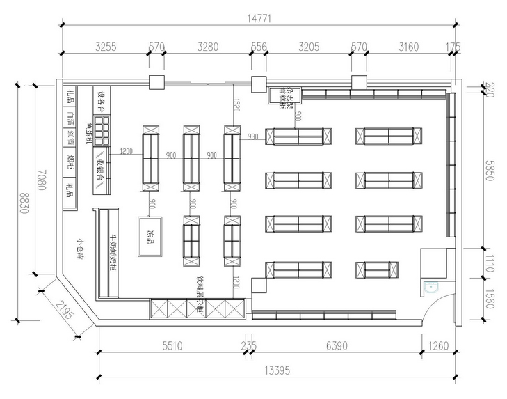
便利店貨架布局
首先、便利店應該有明確的功能區域,【時尚貨架】推薦您按區域來進行貨架擺放
雖然便利店的空間一般都很小,但是麻雀雖小,五臟俱全。一個完整的便利店應該包含食品區,日用品區,收銀區,休閑區,飲品區等常用區域。每個區域的位置和功能都不一樣,需根據具體的陳列需求進行貨架選擇和擺放。
其次、我們可以根據商品的具體屬性來對貨架進行規范的擺放
很多店主都知道貨物要分區域來進行展示,卻不知道每個區域的商品都有很多不同屬性,如果不按屬性進行分配擺放的話,會給顧客造成商品陳列雜亂無章的感覺,不方便選購。好的貨架擺放需要達到以下效果:1、滿足顧客的快捷購物需求。2、激發顧客潛在購買欲望。3、整個空間給顧客安心舒適的感覺,享受購物體驗。
第三、從購物體驗出發,以“易看易選”的原則進行貨架擺放布局
便利店地處小區,日常人流量很大,人民愿意選擇便利店是因為其購物方便快捷,所以便利店貨架擺放要優先考慮滿足顧客快捷購物的需求。所以,那些常用的熱銷產品(水,飲料,紙巾,煙酒等)就應該放在門口最醒目的位置,那些不常賣的貨物則擺放在店鋪的最角落,合理利用便利店每一分空間。
第四、以合理的通風照明為基礎布局便利店貨架
便利店的空間比較狹小,如果不考慮通風和照明,很容易帶來不好的店鋪體驗,如(很多商品根本看不清,店鋪里有異味,商品提前變質等),所以必須根據店鋪的位置,陽光的角度,合理的進行布局,像便利店中島貨架這種占地較大的一般要放在中心區域,靠近照明燈光的地方不應該放置大型貨物,要是店鋪能夠正常通風,照亮每一個重要位置。提高顧客購物體驗。

小型便利店布局鳥瞰圖
第五、地方特色的商品進行特別擺放
現在便利店不僅僅只滿足日常用品的購物需求了,還有很多專門為外地顧客準備的特色商品,這些商品應該放在醒目的地方,吸引顧客讓其產生購買欲望。
第六、便利店貨架需要根據季節的不同來做相關調整
便利店的商品應該每個季節都有不同的擺放方式,通過貨架的季節性調整,在不同季節的給顧客展示不同的商品和購物體驗。
以上就是【時尚貨架】根據15年便利店貨架生產經驗總結出的便利店貨架擺放技巧,雖然都是些理論上的東西,但是根據這些原則結合實際情況,您就能布局出最合理的便利店貨架了。如需了解更多便利店貨架相關知識,請訪問【時尚貨架】官方網站!www.nb-hs.com。



